膠球清洗裝置系統配件檢修工藝規程舉例分析說明?

膠球清洗裝置系統
1.1系統概述
電廠#1、#2機組凝汽器膠球清洗裝置系統采用凝汽器清洗裝置,該膠球清洗裝置主要由兩臺125JQ-15型膠球泵,兩臺EW/800II型二次濾網、SF-1800收球網和ZQ-24裝球室組成。本膠球清冼系統采用單元制布置,這種布置方式可對凝汽器兩側同時清洗。1、排污閥2、清洗蝶閥3、二次濾網4、裝球室5、球閥6、膠球泵7、收球網8、收球網板操作機構。
1.2膠球泵檢修
膠球泵簡介
JQ125-15型膠球輸送泵為單級懸臂式離心水泵,用來輸送膠球進入凝汽器清洗冷卻水管。
膠球清洗裝置檢修工藝
1.2.1.1結構簡介:如下圖:
2.1.1.1JQ型膠球輸送泵主要零件有泵體、泵蓋、軸承室(或托架)、葉輪、軸等,這些零件除軸用優質碳素鋼制成外,其余用普通鑄鐵制成。泵蓋與吸入管鑄為一體,呈水平方向,出水口根據需要可旋90°180°270°泵與電機用牙嵌式聯軸器直接連接,從傳動方向看時,泵軸為順時針方向旋轉。密封環為鑄鐵制成,防止水泵中高壓水漏回進水部位,磨損后可用備件更換。
1.2.1.1.2泵軸由單列向心球軸承支承,軸承的潤滑及冷卻由放入軸承室內的潤滑油完成。
1.2.1.2檢修工藝
1.2.1.2.1解體步驟:
a)拆除對輪保護罩,解開對輪;拆掉電機地腳螺栓,穩開電機,注意保存好地腳調整墊片;
b)拆去與膠球泵連接的管道;
c)拆去膠球泵端蓋,油室端蓋,封密體壓蓋,取出盤根;
d)用用工具拆去葉輪緊固螺絲,取出葉輪和鍵,并將它們放置在用工具盒內;用銅棒或其它工具將轉子與軸承一起取出,放置好。
1.2.1.2.2
檢查清理包括:
a)檢查泵的葉泵輪應完好、光潔、無裂紋、嚴重腐蝕等現象;
b)檢查葉輪口環,密封環無嚴重磨損,無變形,無裂紋等情況。
c)其葉輪口環與密封環的間隙應在密封環直徑的1%~1.5%o范圍內。
d)軸的檢查,應無傷痕、無銹蝕。軸的彎曲度應在規定的范圍內,聯軸器應完好、無裂紋。
e)軸承應完好,轉動靈活、無雜音、滾珠與滾道配合不松曠。表面無裂紋、蝕坑、銹污等缺陷。若有必要應更換。
1.2.2.3回裝順序:
回裝接解的逆順序進行,但應注意以下事項:
a)回裝時,填料和墊子一般應更換;
b)組裝時軸向間隙應在0.10~0.30之間;
c)組裝后盤動轉子應輕松,泵內無雜音;
d)調整轉子對輪中心,圓周和端面偏差應在0.10mm以內。
1.3
裝球室檢修 裝球室簡介用于存貯、更換膠球及觀察膠球運動,型號為ZQ-
24:
檢修工藝裝球室檢修步驟:
a)打開裝球室視窗蓋,清除網芯膠球及石砂雜物,拆下網芯固定螺栓,取出網芯,把網芯清洗干凈,無堵塞。
b)拆下切換閥傳動桿及執行機構,解體切換閥,檢查清理切換閥芯及閥座密封圈。清理放水管道雜物。
1.4
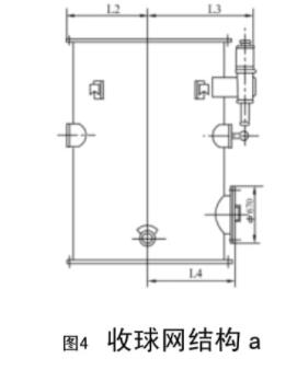
收球網檢修
收球網簡介
本機配置兩臺收球網,型號為SF-1800,用來將清洗凝汽器冷卻水管的膠球進行回收。
膠球清洗裝置系統檢修工藝
1.4.1.1打開人孔,檢查軸、網板、閥板是否有彎曲變形或損壞。
1.4.1.2檢查_上網軸、網板、卡軸板緊固情況。
1.4.1.3檢查各電動執行機構指示與實際開度是否正確。
1.4.1.4清理上:下收球網及下方箱內雜物。
1.4.1.5更換傳動桿密封填料、上下網調整,收球網位置定位后各處大間隙應小于7mm,保證收球網無泄漏。
1.5二次濾網檢修
二次濾網簡介本機配置兩臺二次濾網,型號為EW/800,用來過濾從冷水塔來的凝汽器冷卻水。檢修工藝二次濾網由于內部采用不銹鋼結構,維修工作只是清除內部雜物,其方法為:
a)打開二次濾網入孔門,更換入孔門墊片將螺栓清理干凈,涂上二硫化鉬,放在指定的地方。
b)清除二次濾網內的污物。
c)檢查修整二次濾網的排污門。檢查二次濾網執行機構,應操作靈活無卡澀。并檢查電動執行機構指示與實際開度是否一致。
d)將二次濾網的人孔門回裝上,清理現場。